Как сделать эффективную планировку магазина продуктов
Проектирование магазина — масштабная работа, которая требует определенной последовательности этапов. Вне зависимости от того, строите вы продуктовый магазин с нуля или перепроектируете старый, первый шаг — это определение формата и ниши. Затем необходимо проработать ассортимент и просчитать бизнес‑модель. И только в конце создается детальный проект с зонированием помещения, выбором оборудования и созданием дизайн‑проекта.
Разбираемся вместе с экспертом, как корректно распределять площадь между торговым залом и подсобными помещениями, разместить категории продуктов в правильной последовательности и не ошибиться с дизайном.

Елена Кучихина
Что вы узнаете
- 3 шага, чтобы не ошибиться с проектом магазина
- Начинаем проект: распределяем площади магазина
- Проектируем вспомогательные помещения
- Проектируем торговый зал
- Проектируем входную группу
- Разрабатываем дизайн
- Пример проекта и визуализации магазина продуктов
- Можно ли спроектировать магазин самостоятельно
- Частые ошибки
- Резюмируем
3 шага, чтобы не ошибиться с проектом магазина
Схема продуктового магазина всегда определяется форматом. Прежде чем приступать непосредственно к проекту, нужно ответить на вопросы:

Шаг 1. Определяем формат и нишу. Например, один вариант — открыть магазин в бизнес‑центре и ориентироваться на людей, которые там работают. Другой — запускаться в жилом массиве и закрывать потребности людей, которые идут вечером с работы. Это будут два формата, рассчитанные на потребности разных аудиторий: купить еду для перекуса в офисе или продукты на ужин.
Только после такого анализа станет понятно, что нужно продавать (планировать ассортимент). Конкуренция в этом бизнесе — плотная. Поэтому важно не ошибиться с ответом на вопрос, кому и что предлагать, и разобраться, зачем покупателю идти в ваш магазин, а не к ближайшему конкуренту.
Шаг 2. Прорабатываем ассортимент. Ассортименту необходимо уделить особое внимание. Невозможно корректно спроектировать магазин, если не определить категории и их доли в ассортименте, выручке, а следовательно, и в торговой площади.
❌ Частая ошибка, когда заказчик говорит: «Спроектируйте мне магазин у дома». Да, формат важен, но у него могут быть разные фокусы и специализация в зависимости от целевой аудитории и возможностей бизнеса. Также ошибка пройтись только по макрокатегориям, то есть категориям товаров верхнего уровня: овощи, фрукты, мясо, полуфабрикаты, бакалея, кондитерские изделия.
✅ Матрицу необходимо проработать до SKU (конкретного артикула, от англ. stock keeping unit — единица складского учета) и конкретных поставщиков. И до окончания проектирования решить вопрос с поставщиками и возможными ограничениями. Иначе возникает риск или вообще не найти поставщика с подходящими ценами, или столкнуться с ограничением: например, поставщик привозит товар паллетами, а хранить их негде.
Исследование покупателей для планирования ассортимента
Если у вас уже есть работающий магазин или развитая сеть, сделать это проще: можно проанализировать продажи, действующие программы лояльности и провести опрос по клиентский базе или на доступных покупательских аудиториях. Например, появилась гипотеза: к вину покупатели покупают ягоды. А опрос показывает, что вместо ягод они предпочли бы расширение деликатесно‑колбасной группы. Так исследование помогает скорректировать гипотезу или выявить новые незакрытые потребности.
Если только открываете торговую точку, посмотрите на успешные кейсы схожих проектов: какой ассортимент ставят на полки они, какие категории у них преобладают, а какие — представлены минимальным количеством товара. И старайтесь найти свое уникальное преимущество или отличие.
Шаг 3. Просчитываем бизнес‑модель. Большая ошибка предпринимателей — работать интуитивно, не просчитывая досконально бизнес‑модель. Я часто сталкиваюсь с этим как в небольших проектах, так и в сетевых.
До проектирования магазина необходим подготовительный этап:
- 🔍 Оценить рыночную ситуацию, изучить тренды в продуктовом ритейле, потребительский спрос и конкурентное окружение в вашем регионе.
- 📈 Спрогнозировать спрос на магазин именно такого формата в выбранной локации.
- 💸 Подробно просчитать, как и сколько может заработать магазин и какие расходы придется понести.
Именно в этот момент станет ясно, где могут возникнуть проблемы, где придется ужаться, а на что — потратить больше запланированного. Предприниматели, которые всё детально просчитывают, на этом этапе часто приходят к выводу, что в настоящий момент они не готовы — или работать с задуманным форматом, или вообще открывать собственный магазин.
Начинаем проект: распределяем площади магазина
Проект продуктового магазина начинается с технического задания, где необходимо прописать всё, что требуется в магазине — как в торговом зале, так и в подсобных помещениях. Далее переходим к зонированию: площадь делится на торговый зал и подсобные помещения.
🙅 Будет ошибкой проектировать сначала что‑то одно, потом другое: обе части одинаково важны. А вот подход к проектированию небольших магазинов (примерно до 500 кв. м) и проектов большой площади будет немного различаться. И крайне важно — сформируйте техническое задание, в котором будут указаны основные параметры формата. Это позволит правильно сфокусироваться и ничего не забыть в спешке открытия.
В небольших магазинах в первую очередь прорабатываем вспомогательные помещения: определяем, какой площади понадобится склад, какими будут производственные помещения, сколько нужно административно‑бытовых комнат для работы и отдыха персонала, сколько — технических для хранения оборудования и средств уборки. И уже потом переходим к проекту торгового зала. Если отделить слишком много площади для торгового зала, подсобные помещения могут просто не поместиться. Но и занимать лишнюю площадь подсобками некорректно.
Для большого магазина важно на старте просчитать состав и площадь производственных зон. Для этого нужно определить, что будете делать непосредственно в магазине: например, потребуется ли горячий или холодный цех, будет ли разделка мяса или рыбы и производств полуфабрикатов, обработка овощей. Только тогда вы будете уверены, что необходимые производства впишутся в проект и будут правильно расположены. После того как вы распределили площади, можно приступать к проекту торгового зала и маршрутов покупателей.
⭐️ Проработка маршрутов — самое главное, потому что наша задача — довести покупателя до кассы так, чтобы он купил всё необходимое и обратил внимание на как можно большее количество товаров.
Существенный плюс этой методики в том, что не приходится потом терять драгоценные недели и переделывать проекты из‑за того, что что‑то не учтено или не проработано в правильной последовательности.
Какие еще требования необходимо учесть в схеме помещения магазина продуктов
В зависимости от размеров магазина нужно предусмотреть, в частности, отдельный вход для персонала и разгрузки продуктов, естественный свет из окна в административных комнатах, окна в помещениях цехов с мукопросеивателем, санузлы и раздевалки персонала. Решить вопрос с эвакуацией и пожарными проходами.
Основные требования к продуктовым магазинам изложены в санитарно‑эпидемиологических правилах: СП 2.3.6.3668‑20, СП 2.1.3684‑21.
Проектируем вспомогательные помещения
Классическая рекомендация по доле вспомогательных помещений:
| 15–20% | 20–25% |
|---|---|
| для магазинов площадью < 600 кв. м | для магазинов площадью от 600 кв. м |
Площади в крупных супермаркетах оставляют больше пространства для маневра. Например, если стала пользоваться успехом готовая кулинария, то всегда можно перестроить часть сухого склада под производство салатов и горячих блюд (конечно, приняв во внимание возможные ограничения).
В маленьком магазине такой возможности нет. Если изначально отвести под подсобные помещения меньше пятой—шестой части всей площади, то может не хватить места. Например, увеличили объем закупок и товары не помещаются на складе. Или осталось мало места под комнаты для персонала.
Производственные помещения
Приведу пример. Предприниматель спроектировал торговый зал и, когда магазин заработал, решил добавить новый цех по производству свежей выпечки. Оказалось, сделать это невозможно из‑за конфигурации помещения. Если бы цех наметили на этапе планировки продовольственного магазина, его можно было бы реализовать.
Поэтому на старте важно определить, что именно вы планируете производить в торговой точке, и заложить это в проект магазина продуктов.
Учитывайте при проектировании не только требования СанПиНов, но и нормативы по охране труда и организации рабочих мест. Такие нормативы есть для всех видов деятельности, продуктовый ритейл — не исключение.
Зачем нужны нормативы по организации рабочих мест
Чтобы сотрудникам было удобно работать — тогда повысится эффективность, снизится риск травматизма и т.д. К примеру, рабочая зона должна быть 75 см в ширину. Сделаете ее на 10 см меньше — сотрудникам будет тесно, подходить к оборудованию — неудобно. Слишком широкая рабочая зона тоже плохо: люди будут тратить больше сил на перемещение по производственной линии. Всё это будет негативно сказываться на производительности, настроении персонала и в итоге — влиять на качество продукции.
Складские помещения
Организация складских помещений напрямую зависит от планируемого ассортимента. Покажу на примере. Допустим, целевая категория — свежее мясо. Площадь и планировка склада продуктового магазина определяются после ответов на следующие вопросы:
🥩 В каком виде и у кого закупаете мясо?
Туши, полутуши, небольшие куски или готовые полуфабрикаты, замороженное или охлажденное — важно понять, что именно будет завозиться, в каком объеме, какие у поставщика кванты поставок (количество товара в упаковке), какой нужен объем холодильных, морозильных камер и сухих складов.
📅 Как часто его закупаете?
Здесь ключевое — доступность конкретного товара в вашем регионе.
- Магазин расположен в Москве? Вам повезло: столица — огромный логистический хаб, и почти всегда можно договориться с поставщиками о ежедневных поставках.
- Точка открывается в Норильске? Учитывайте, что часть товаров будет приходить максимум 1 раз в неделю и даже реже.
🔪 Что еще понадобится для обработки?
Если вы закупаете мясо целыми тушами, то необходим цех по обработке туш, помещения для мойки, разделки и рубки, большие камеры для хранения. А если занимаетесь готовыми полуфабрикатами в вакууме, то не понадобится почти ничего: часть положили в холодильник на хранение, а часть выложили для покупателя на прилавок или «в горку».
Часто предприниматели приходят ко мне с идеей: «У нас маленький магазин, будем работать «с колес», без склада — закупать продукты ежедневно и сразу выгружать на полки». За последние 10 лет ни один проект продуктового магазина не смог так работать — это крайне сложно, особенно когда речь идет о первом магазине. Поэтому склад и объем хранения необходимо просчитывать изначально.
Проектируем торговый зал
Основное правило — нет универсальных правил. И сам ассортимент, и размещение товарных групп в торговом зале определяются форматом, в первую очередь ассортиментом, сервисами, которые спланированы под покупателя: кто он, когда приходит в ваш магазин, что хочет приготовить из купленных продуктов, когда и как будет потреблять.
Планировка торгового зала продуктового магазина основана на разделении продуктов на базовые и целевые (приоритетные) категории, с учетом сезонных и удобных категорий.

Источник фото: Pinterest
Традиционно к базовым категориям относят крупы, сахар, соль, консервы, молочную и замороженную продукцию. Но на практике эти роли назначает продуктам сам ритейлер. Например, фрукты и овощи могут быть базовой категорией, и тогда на прилавках будут представлены основные позиции: борщевой набор, овощи для салатов, традиционные фрукты. А если концепция магазина предусматривает приоритетную роль фруктово‑овощной группы, то на стеллажах появится разнообразная зелень и экзотические фрукты.
Сначала размещаем целевые категории так, чтобы они были на виду и покупатель шел от одной к другой.
🥙 Например, аудитория магазина чаще всего приходит, чтобы купить продукты для приготовления обеда и ужина. Тогда приоритетные категории размещаем исходя из общепринятого подхода к меню — сначала люди покупают овощи на салат, потом выбирают свежее мясо и крупы для основного блюда. Их располагаем чуть дальше по маршруту, а ближе к выходу — сладкое и алкоголь на десерт.
🌯 Другой случай — покупатели забегают днем за быстрым перекусом. Целевые категории размещаем так, чтобы эту покупку было удобно совершить: недалеко от входа ставим горку с готовой едой и булочками, в центре торгового зала — салаты и напитки, откуда самым коротким путем направляем на кассу с кофемашиной.
Потом связываем целевые категории базовыми. Их располагаем либо по второму кругу (за целевыми товарами), либо по пути от одной целевой группы к другой (как сопутствующие к основной покупке).
Кроме расстановки продуктов в торговом зале, важно продумать кассовую зону. Здесь основная рекомендация — учитывать планируемый трафик. В противном случае можно заложить в проект слишком мало кассовых мест, что приведет к очередям, а вход и выход в магазин будет затруднен.

Чтобы оборудовать кассовую зону, необходимо купить онлайн‑кассу. Это может быть компактный и бюджетный смарт‑терминал или фискальный регистратор в связке с полноценным компьютером.
Из дополнительного оборудования потребуется сканер штрихкодов, чтобы «пропикивать» товары на кассе, денежный ящик для хранения налички и весы. Для удобства комплект можно дополнить экраном покупателя, на который будут выводиться сопутствующие товары, акции и подробная информация о покупке.
Поскольку уже сейчас ряд товаров маркируются, кассовая программа должна уметь отправлять коды маркировки в «Честный знак» при продаже, а также отправлять данные в ЕГАИС при реализации алкоголя.
Алексей Гаврилов, эксперт по автоматизации ритейла и HoReCa
Проектируем входную группу
Первые несколько шагов от входа — максимально мертвая зона. Покупатель только перешел из атмосферы улицы или торгового центра в обстановку магазина, и ему надо освоиться, а не сразу решать, что купить.
Цель входной группы — замедлить покупателя, настроить на покупки и напомнить, зачем он пришел. Поэтому в ее оформлении используют постеры со слоганами, сезонную или промовыкладку. Часто размещают фрукты и овощи. Во‑первых, это самая яркая, эмоциональная и позитивная группа, она лучше всего привлекает внимание. Во‑вторых, большинство покупателей останавливаются и выбирают овощи и фрукты, таким образом настраиваясь на покупку и начиная планировать меню.
Затем от входной зоны направляем поток к следующей целевой категории.

Примеры c сайта Pinterest
📂 Результатом должен стать ПОЛНЫЙ проект магазина.
Он включает технологические решения торгового зала и подсобных помещений со спецификацией, рассчитанными мощностями, техзаданиями на подготовку инженерных проектов по воде, канализации, вентиляции и электрике. Эти требования важны как для корректных инженерных проектов, так и для подбора помещения.
К примеру, на помещение выделена мощность и ее невозможно увеличить. Это ограничение может не позволить организовать желаемый формат.
Бывают ситуации, когда удачное помещение подвернулось до проекта. Возникает вопрос, что делать, потому что хочется его взять. Мой совет — обратитесь к специалистам: технологам, консультантам, проектировщикам. Опишите им примерный формат и спросите про ограничения.
Ко мне часто приходят заказчики, которые уже практически подписали договор аренды и им кажется, что выделенные, например, 30 кВт — это много. При разговоре выясняется, что заказчик хотел бы выпекать свежие булочки и хлеб, готовить из полуфабрикатов. И вот уже 10–15 кВт уходит под выпечку и готовку. А есть еще холодильное и морозильное оборудование, кондиционирование и вентиляция, свет и т.п. И уже на старте проекта магазина мы знаем, что в этом случае 45 кВт — необходимый минимум.
Разрабатываем дизайн
Дизайн — заключительный, но далеко не самый легкий этап проекта продуктового магазина. Каждый пятый заказчик приходит ко мне на консультацию с таким запросом: «Сначала быстро сделаем дизайн, а с брендингом разберемся потом». И каждый раз я объясняю, что такой подход не сработает.
Дизайн в ритейле — не просто эстетика, это оформление бизнеса. Задача дизайна: точно отражать позиционирование, запоминаться посетителям, увеличивать продажи.
Вот что нужно для начала работы над дизайном:
| 😍 Идеально | Брендинг полностью разработан: есть логотип, разработана цветовая палитра, готов слоган, продумано позиционирование. Вы уже знаете своего покупателя — остается только спроектировать пространство и оформить его, чтобы оно было функционально, красиво и соответствовало целевой аудитории |
| 👌 Необходимо для старта | Готовы логотип, фирменные цвета и торговая марка. Можно начинать работу — закладывать эти цвета, материалы и идеи непосредственно в дизайн |
| 🙁 Самый минимум | Есть только фирменные цвета. Такая ситуация допустима, но только если параллельно вы уже работаете над брендингом с агентством |
| 😢 Исключено | Нет ничего. Дизайнер, по сути, должен работать наугад и предвосхитить будущее решение и правильно заложить все цвета и материалы. В таком подходе высок риск не попасть в нужное позиционирование для открываемого магазина |
Как сделать «красиво»
Я консультирую предпринимателей по всей стране и вижу, как различаются предпочтения у посетителей небольшого дискаунтера на юге России, премиум‑бутика в Москве и сетевого магазина в Хабаровске.
Как сделать «красиво» для конкретной целевой аудитории? В идеале — провести полноценное исследование и протестировать наработки на будущих покупателях. Это сложно, долго и дорого. Поэтому есть и альтернативные подходы.
Например, разделить покупателей на группы по поколениям — каждому поколению нравится свой набор образов, цветов и шрифтов. Такой подход называется поколенческая психографика. Есть и другой вариант — психографическая сегментация, то есть разделение по статусам, интересам, образу жизни. Здесь уже более детально понятно, что нравится каждому сегменту.
Можно ориентироваться на правило: чем проще формат магазина и чем он более ориентирован на конечную цену, тем более простые цвета и образы мы применяем. Чем выше ценовой сегмент, тем сложнее будут цветовые и конструктивные решения.

Как выбрать дизайнера
Многие собственники магазинов ищут дизайнера самостоятельно — это может быть проще и дешевле, чем обращаться в профессиональную компанию. Чтобы найти подходящего специалиста, помните, что оформление бизнеса существенно отличается от оформления личных пространств: расчет не на одного‑нескольких человек, а на большое количество разных людей.

Примеры дизайна помещений c сайта Pinterest
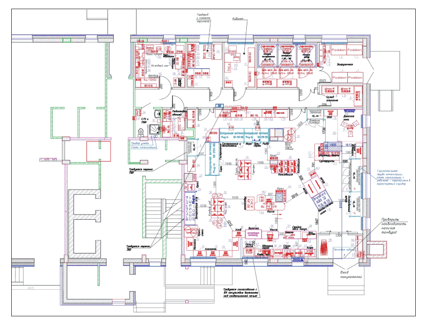
Пример проекта и визуализации магазина продуктов
Покажу пример из своей практики, как выглядит план продуктового магазина. Позиционирование точки — магазин свежих продуктов и деликатесов уровня «средний+ ценовой сегмент». Формат — магазин у дома с акцентом на деликатесы и редкие продукты в регионе, где планируется магазин. Рассчитан на взыскательного и платежеспособного покупателя. Общая площадь — 250 кв. м. Есть холодный цех для приготовления полуфабрикатов готовых блюд, сэндвичей, салатов и другой продукции. Предусмотрена детская зона.
На плане показана расстановка торгово‑технологического оборудования:

Так выглядит визуализация с оборудованием и дизайном магазина:


Зачем нужно умное видеонаблюдение
Следить за происходящим в прикассовой зоне, торговом зале и на складе помогает видеонаблюдение. Достаточно щелкнуть мышкой на интересующую зону — и программа для магазинов Setty покажет видео в режиме онлайн.
Камера на кассе нужна, чтобы разрешать спорные ситуации с клиентами и бороться с недобросовестными кассирами. Программа привязывает видео ко времени по чеку: какие товары пробили, сколько сдачи выдали. Любое видео можно найти за пару кликов. А по сомнительным операциям, например ручному назначению скидок или аннулированию чеков, Setty сразу пришлет уведомление с видеозаписью.
Камеры в торговом зале дают возможность оценить выкладку товаров, работу и внешний вид продавцов. А на складе — следить за приемкой и пресекать махинации сотрудников.
Алексей Гаврилов, эксперт по автоматизации ритейла и HoReCa
Можно ли спроектировать магазин самостоятельно
Продуктовый ритейл — не такой простой бизнес, каким кажется на первый взгляд. Самостоятельное погружение в тонкости проектирования продуктового магазина может привести к ошибкам и неоправданно высоким тратам.

Моя рекомендация — идти к специалистам: профессиональным консультантам или опытным коллегам‑ритейлерам. Ценность их работы — не только в том, что они знают, «как правильно», но и в том, что они зададут те самые неудобные или неожиданные вопросы — и уберегут от ошибок и лишних затрат.
Частые ошибки
Расскажу теперь о том, как не надо делать проект магазина продуктов.
👀 Проектировать по принципу «как у других». Часто возникает соблазн посмотреть на успешного конкурента и спроектировать магазин так же: ведь если у него срабатывает, то наверняка и у меня получится.
Полностью копируя конкурента, мы перестаем отличаться — предлагаем то же самое и никак не выделяемся для покупателя. Это значит, что конкурировать можно только по цене — и в этот момент предприниматель попадает в ловушку промоакций и скидок.
Универсальных правил проектирования нет. Главное — идти от своего покупателя и при принятии любого решения учитывать цель его покупок.
🔎 Не перепроверять проект. Когда сделан первоначальный план продуктового магазина, готовится спецификация необходимого оборудования и проводится тендер. В этот момент необходимо перепроверить весь проект, потому что фактический состав оборудования может измениться, и при монтаже и поставке это станет проблемой.
После того как закончили выбор оборудования и поставщика, еще раз проверьте, насколько критичны отклонения от первоначального проекта. Особенно это актуально при организации производственных цехов: поставщики могут предлагать разные размеры столов, моек, печей, плит, пароконвектоматов.
Пример из моей практики: предприниматель, который планировал открыть продуктовый магазин, заказал спецификацию и провел тендер. Поставщик оборудования предложил более бюджетное решение, размеры которого немного отличались от заложенного в проекте. Различие в 1–2 см показалось не принципиальным, но в производственной линии таких допусков возникло 6 штук — в результате получилось 12 лишних см, из‑за которых линию уже невозможно было смонтировать.
Игнорировать СанПиНы. Грубые нарушения санитарных требований — это не только штрафы для бизнеса, но и риски для покупателей: помните, что пищевые отравления могут испортить вашу репутацию и даже привести к уголовной ответственности.
Если делаете проект сами и сомневаетесь, всё ли учли, проконсультируйтесь в Роспотребнадзоре. Специалисты подскажут, всё ли в порядке или требуется что‑то исправить.
Резюмируем
Проектирование продуктового магазина — работа гораздо более масштабная, чем расстановка стеллажей в торговом зале и разработка цветовой гаммы и логотипа. Чтобы планировка была удобной для покупателей, эргономичной и помогала зарабатывать больше, действуйте последовательно:
| Этап | Вопросы |
|---|---|
| 1. Определите нишу и формат магазина | Что и кому будем продавать? Кто наш покупатель и зачем он к нам придет? |
| 2. Разработайте ТЗ на проект | Какие помещения нужно будет спроектировать? Как расположить ассортимент? |
| 3. Подготовьте предварительный проект | Какое оборудование и где закупить? |
| 4. Уточните проект | Реалистичен ли проект и соответствует ли ТЗ? |
| 5. Разработайте дизайн | Как оформить торговый зал и фасад по цветовым акцентам? Какой формы и высоты выбрать стеллажи и витрины? Какие будут ценники, баннеры с навигацией и рекламой? Чем украсить входную зону? |
Управляйте магазином в Setty и не теряйте деньги
- Авторасчет потребности в продуктах для заказов
- Предупреждение о повышении цен поставщиков
- АВС‑анализ для выявления лидеров и аутсайдеров продаж
- Контроль за сроками годности

Видеоматериалы по теме



